Un progetto rivisitando e mettendo in equilibrio tra loro gli spazi
Armonia, sorpresa e contemporaneità: le parole chiave del progetto di ristrutturazione dell’appartamento di 180 mq ubicato a Castel San Giorgio nella provincia di Salerno.
L’appartamento si presentava come uno spazio non funzionale, privo di carattere e con numerose carenze dal punto di vista impiantistico. Le esigenze funzionali richieste, rispetto alle tipologie degli ambienti, sono state soddisfatte realizzando un discorso progettuale di continuità armonica dello spazio e di complessità degli elementi in equilibrio tra loro.
La scelta di creare un unico ambiente “open space” per il soggiorno-cucina, permette di avere maggiore profondità dello spazio e maggiore vista prospettica.
Il corridoio, attrezzato con mobili ad incasso, funge da disimpegno per la zona notte composta da tre stanze da letto, di cui una matrimoniale con bagno e cabina armadio interni, un bagno di servizio e la zona lavanderia.
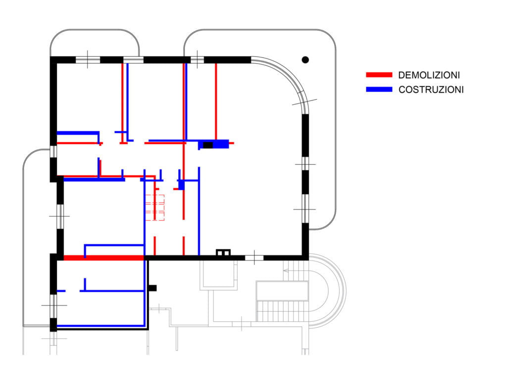
La prima fase di cantiere prevede la demolizione totale dei tramezzi, per dare maggiore libertà nella progettazione della fluidità ed ergonomia dello spazio, la demolizione dei massetti, delle pavimentazioni e dei relativi impianti.
L’appartamento viene quindi riportato “al grezzo”.
Una volta elaborata la pianta delle demolizioni e ricostruzioni, si passa alla seconda fase di cantiere, che consiste nello “spiccato dei tramezzi”, realizzati in blocchi forati in laterizio dello spessore di 8 cm e malta cementizia ed ancorati con cordolo in c.a. nel rispetto della normativa tecnica in zona sismica.
La parete attrezzata del soggiorno ingloba il camino con elementi volumetrici razionali e viene realizzata in opera con una base in c.a. e pareti in blocchi forati.
La terza fase di cantiere prevede la messa in opera degli impianti idrico ed elettrico, come da progetto.
Una volta impostati tutti gli impianti, con le relative centraline di controllo, si procede con il getto del massetto autolivellante.
La “staticità” dell’open space è stata rivitalizzata con la realizzazione della controsoffittatura a diverse altezze, con giochi di sottrazione ed addizione degli elementi.
La controsoffittatura è stata realizzata con pannelli in cartongesso e struttura metallica.
La scelta delle pavimentazioni e dei rivestimenti, nel formato e nella scelta dei colori, rappresenta una fase molto delicata del progetto perché determina gran parte della percezione visiva e del comfort dello spazio.
La pavimentazione sobria ed elegante dell’ingresso, grazie alle lastre di marmo di Carrara, crea un unico piano lucido che riflette la luce che proviene dalle vetrate dei balconi e si confronta con il colore deciso e dal carattere forte della ceramica Vietrese posata nella zona cucina attraverso un’area di passaggio rappresentata dalla zona pranzo tramite un gioco di forme realizzato con lastre in parquet di Rovere ed inserti di ceramica realizzata a mano.
L’open space si arricchisce di elementi caratterizzanti grazie all’utilizzo di rivestimenti in pietra ricomposta, dalle forme geometriche pure che risaltano grazie alla luce di faretti a terra che creano un interessante gioco di luce ed ombre.
Lo spazio gode dei colori tenui che creano maggiore luce riflessa interna.
Il discorso architettonico dello spazio prosegue coerentemente nel corridoio e nelle stanze da letto dove viene posato il parquet in essenza di Rovere, legno chiaro ma deciso che contribuisce alla luminosità degli ambienti.
Nei bagni prosegue il dialogo tra elementi diversi, lastre in gres effetto pietra che fanno risaltare gli elementi decorativi di pregio in ceramica lavorata a mano.
La scelta delle texture, dei colori, dei materiali e delle forme dell’arredo completano le geometrie degli spazi rendendoli articolati e funzionali.







